Casa à venda no coração do Porto – tradição e conforto moderno
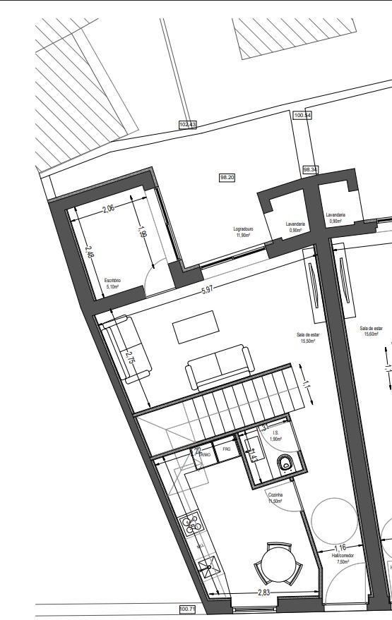
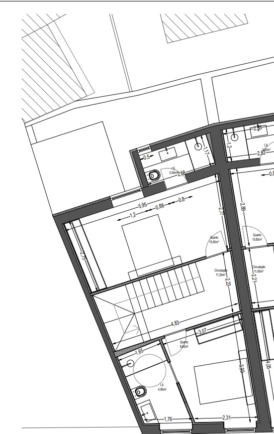
Descubra uma moradia com verdadeira alma portuense, atualmente em reabilitação integral e a ser entregue em regime “chave na mão”. Com 133 m² de área privativa e um sótão de 20 m², esta moradia em banda distribui-se por 3 andares, unindo charme arquitetónico e comodidade contemporânea.
Principais características
- Área: 133 m² + sótão com 20 m²
- Pisos: 3 andares
- Quartos: 2 suítes
- Escritório: espaço dedicado, ideal para trabalho remoto
- Zonas sociais: sala e cozinha amplas, pensadas para convívio
- Exterior: espaço agradável para usufruir do ar livre
- Entrega: “chave na mão”, após conclusão da obra
- Acabamentos: modernos e de qualidade
Distribuição e conforto
A moradia foi projetada para privilegiar funcionalidade e luz natural. As duas suítes garantem privacidade no dia a dia, enquanto o escritório oferece um ambiente calmo para trabalho ou estudo. As áreas de estar e cozinha foram dimensionadas para receber família e amigos com conforto. O sótão de 20 m² acrescenta versatilidade ao conjunto — perfeito como zona de lazer, arrumação adicional ou atelier, conforme as suas necessidades.
Localização e acessos
Situada numa zona valorizada do Porto, com acesso rápido ao centro, a moradia está perto de transportes públicos, hospitais e universidades. As ligações à VCI e às autoestradas facilitam as deslocações dentro e fora da cidade, tornando o quotidiano mais simples e eficiente.
Qualidade de vida no centro da cidade
A combinação de reabilitação cuidada, materiais de qualidade e localização estratégica traduz-se numa proposta de valor sólida — ideal para quem procura viver o Porto autêntico com o conforto de uma casa moderna.
Marque a sua visita
Não perca a oportunidade de conhecer esta moradia que une tradição e modernidade. Contacte-nos para mais informações e agendamento de visita.
Mais fotos
(Algumas imagens são meramente ilustrativas e não representam o acabamento final.)


























