Townhouse for Sale in Porto – Tradition Meets Modern Comfort
Discover this townhouse in the heart of Porto, currently undergoing a complete renovation and to be delivered turnkey ready. An ideal opportunity for those seeking to combine the charm of historic architecture with the comfort of contemporary living.
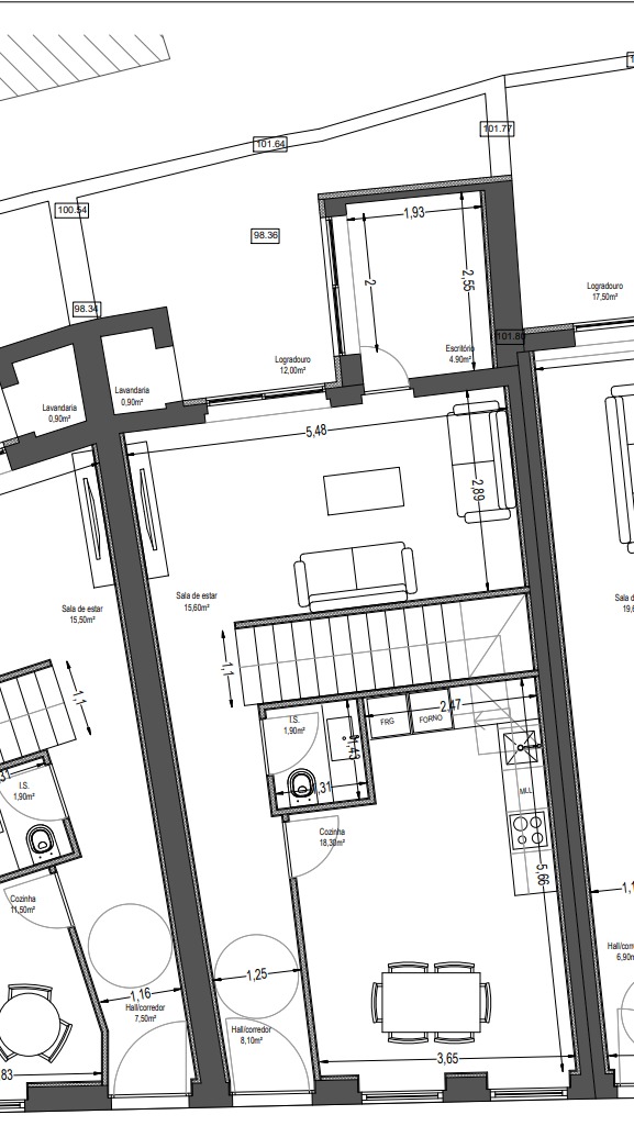
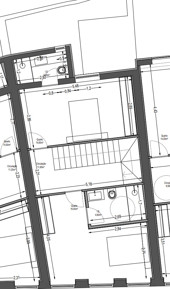
Space and functionality across three levels
With 148 m² of living space and a approx. 20 m² attic, the property is spread over 3 floors:
- 2 spacious en-suite bedrooms providing privacy and comfort,
- Home office/study, perfect for remote work or study,
- Bright open-plan living and kitchen area, designed for family and social gatherings,
- Versatile attic (approx. 20 m²), adaptable as an extra bedroom, leisure room or storage,
- Terrace and balcony, ideal for enjoying the outdoors.
Quality and style
Featuring modern, high-quality finishes, this townhouse harmoniously combines Porto’s traditional architecture with modern design and functionality.
Prime location
Located in one of the most prestigious areas of Porto, the property offers excellent access to the city center, VCI and main highways, as well as proximity to public transport, universities and hospitals.
Book your visit
Don’t miss the chance to live in a home that blends tradition, quality and modern comfort. Contact us today to schedule your visit!
More photos
(Some images are for illustrative purposes only and do not represent the final finish.)


























